HOTEL

SCHETSONTWERP RANDSTAD ALMERE

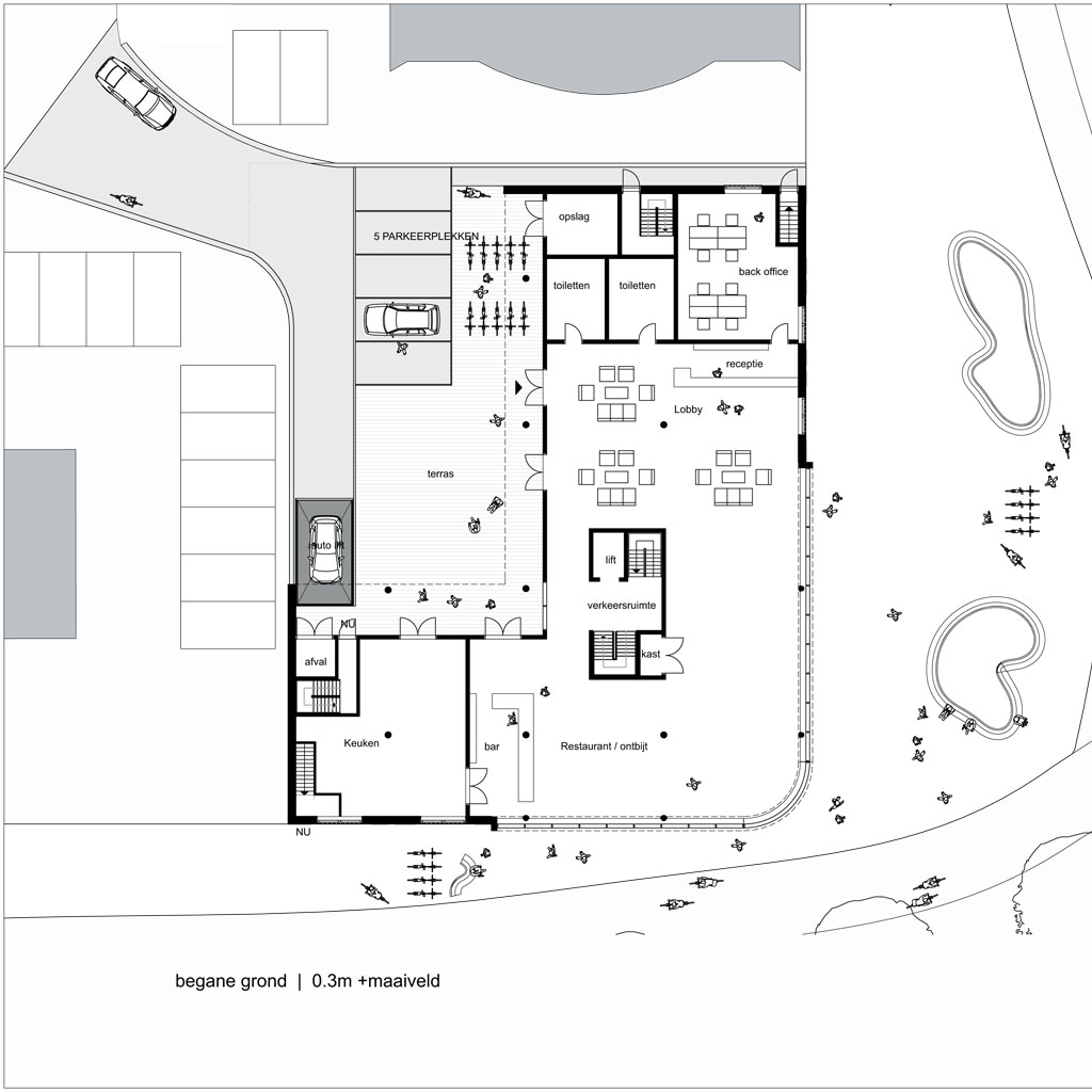
Studie naar herbestemming hotel

Deze prachtige hoek locatie te Almere is ons gevraagd samen met Club Circulair een studie te doen naar het realiseren van een hotel. Het hotel dient als nieuwe hoeksteen van de nieuwe stedelijke uitgangspunten.

De hoofd ontsluitingen bevinden zich aan de achter zijde, echter het blok is zo gecomponeerd dat zoals gewenst het zicht aan de dreven ook omgezet kan worden tot daadwerkelijke toegang en zo doende de interactie en levendigheid van deze wij kan vergroten.

Opdrachtgever

Kroon beheer B.V.

Samenwerking

Club Circulair

 

Periode

2017

Bekijk overige projecten

robin hurts architect klein westerlicht

klein westerlicht alkmaar

Bedrijfspand Heerhugowaard

Castricum studie appartementen centrum

Nieuwsgierig geworden naar onze aanpak? En hoe wij onze expertise voor u kunnen inzetten? Bel of mail ons voor een vrijblijvend gesprek.