VIER APPARTEMENTEN

NIEUWBOUW DUURZAAM – CENTRUM ALKMAAR

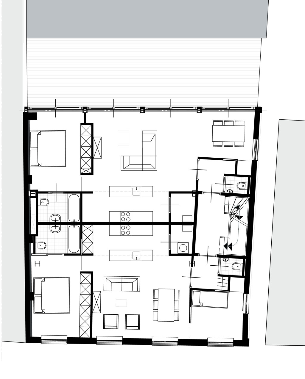
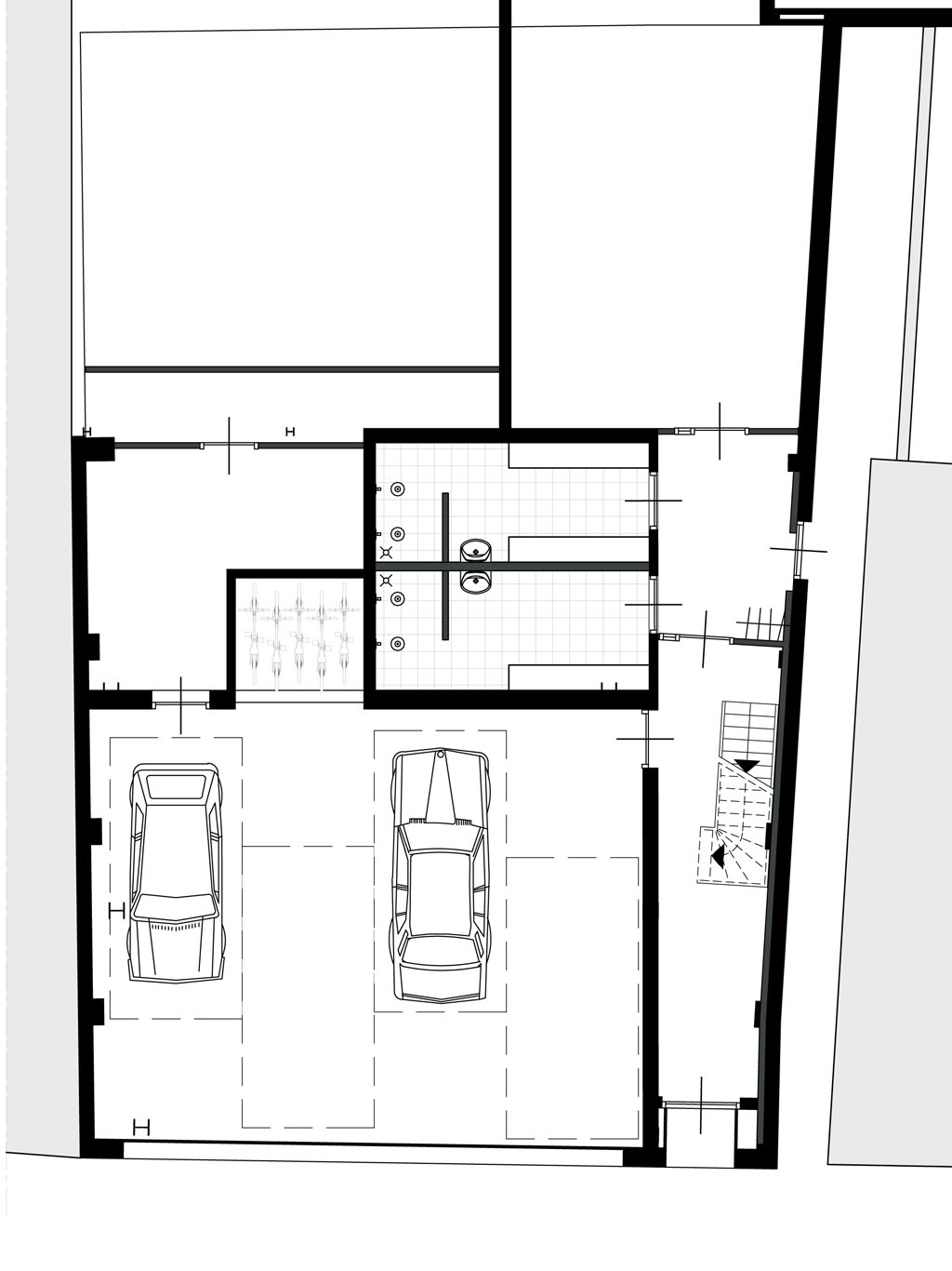
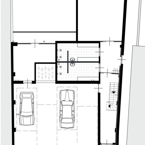
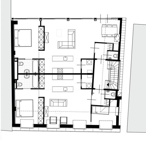
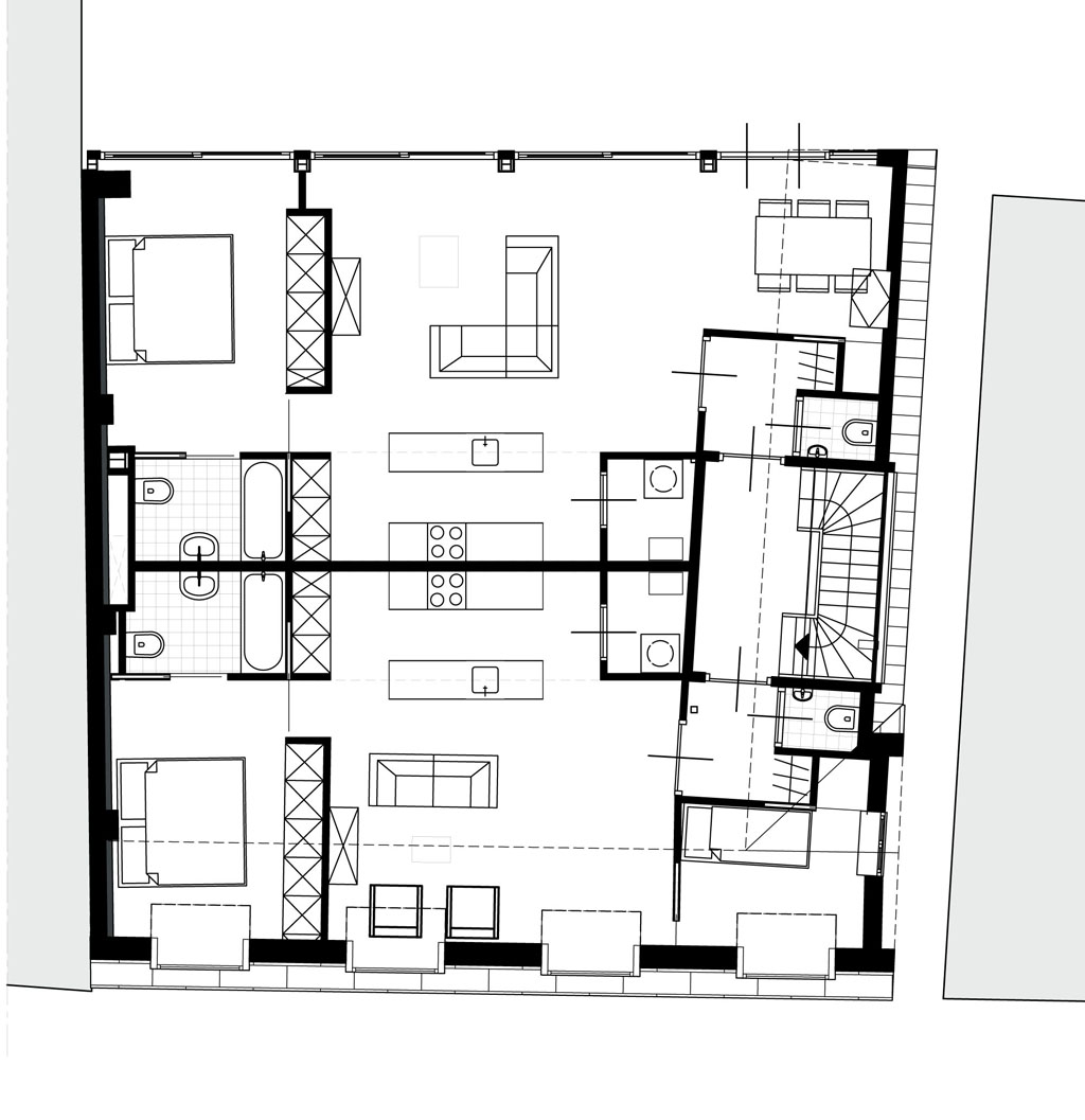
Voor het mooie historische centrum van Alkmaar heeft RHa een kleinschalig appartementen complex ontworpen. Het betreffen vier appartementen v.v. inpandige garage en een dakterras. De appartementen zijn ondanks hun beperkte oppervlakte ruimtelijk opgebouwd en flexibel te gebruiken. De straat zijde wordt voorzien van franse balkons en de terras zijde van schuifpuien.

Opdrachtgever

Privé

Periode

2014

Bekijk overige projecten

robin hurts architect klein westerlicht

klein westerlicht alkmaar

De draai heerhugowaard korenbloemstraat robin hurts architect

Nieuwbouw woning de draai Heerhugowaard

Bedrijfspand Heerhugowaard

Nieuwsgierig geworden naar onze aanpak? En hoe wij onze expertise voor u kunnen inzetten? Bel of mail ons voor een vrijblijvend gesprek.