TWEE ENERGIE NEUTRALE WONINGEN

VERBOUWING BESCHERMD STADSGEZICHT  – ALKMAAR

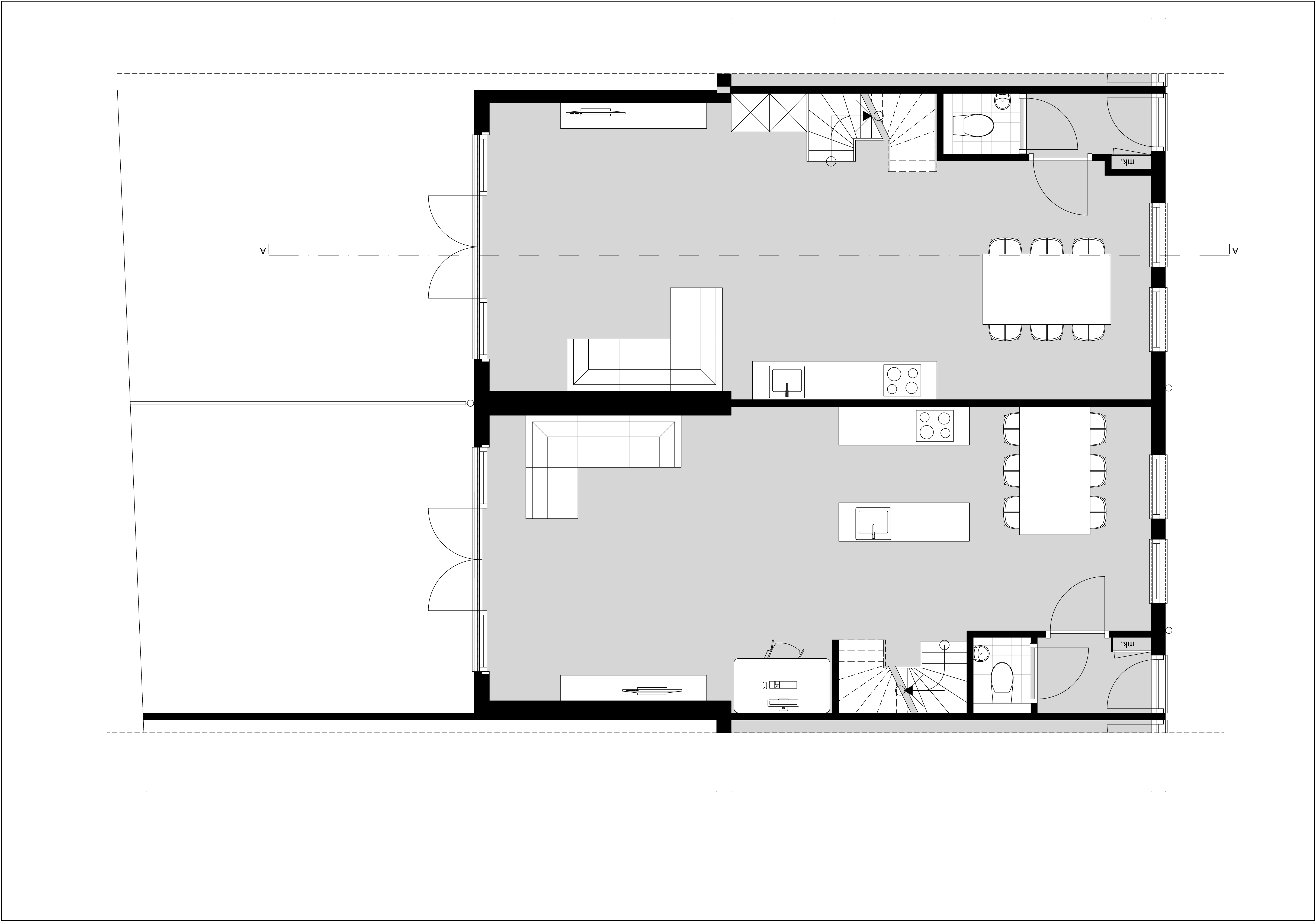
Aan de rand van de wijk zuid in Alkmaar ligt de Akerslaan. Dit prachtige laantje kent twee karakteristieke woning blokken. De woningen uit de jaren 40, ook bekend onder de term arbeiderswoningen gebouwd zonder sanitair en simpel van bouwkwaliteit. De uitdaging voor de toekomst wordt hier met beide handen aangepakt. De woningen worden voor zien van een nieuwe kapel in oude stijl en een aanbouw aan de achterzijde over twee lagen. De goede isolatie in combinatie met nieuwe kozijnen en installatie punten halen het maximale uit de moderne tijd om een nieuwe duurzame toekomst te gemoed te gaan.

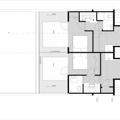
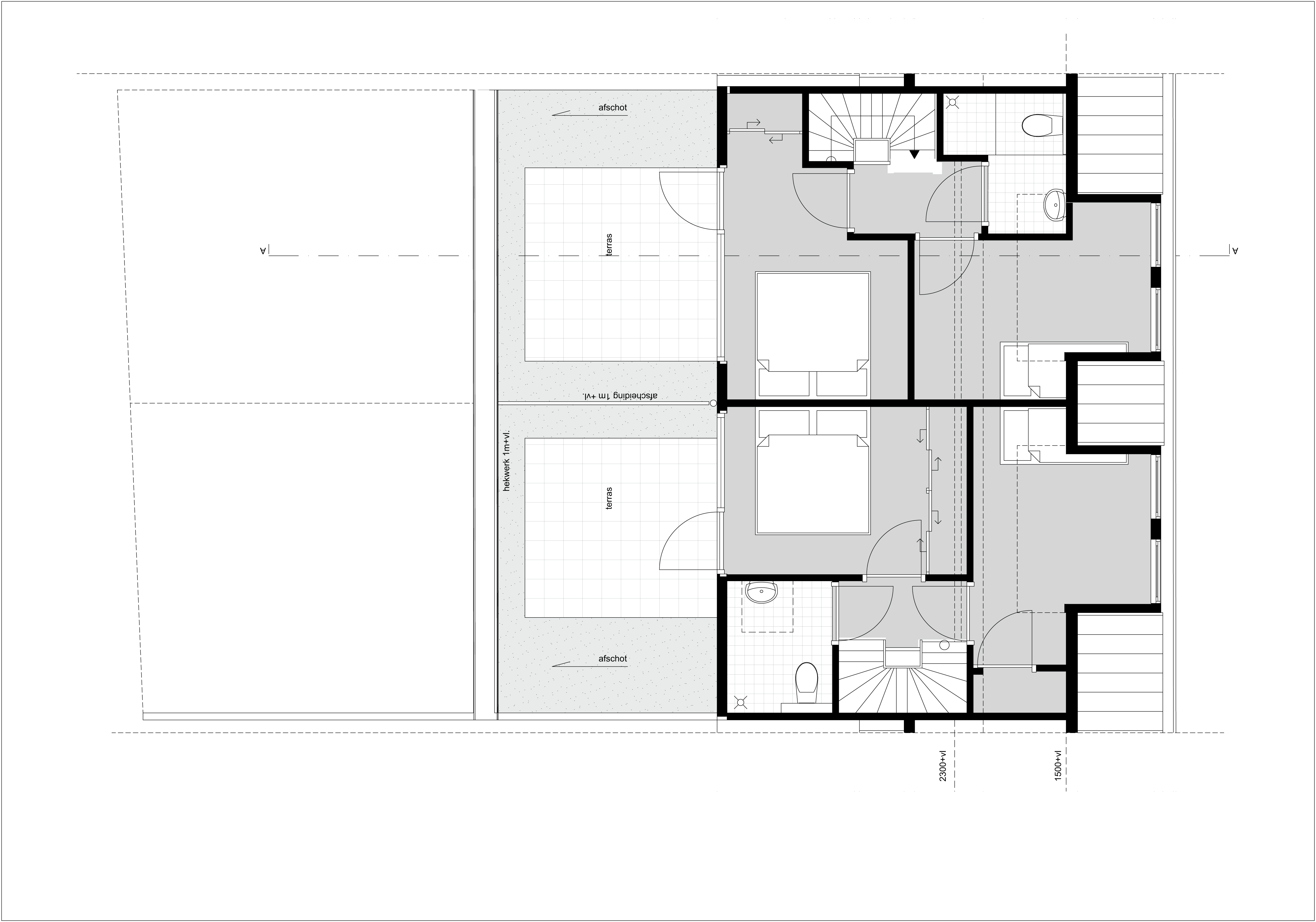
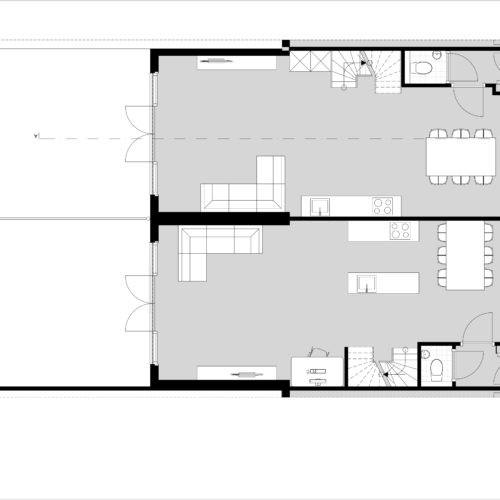
De kapellen lijnen op met de onderliggende vensters en zorgen voor de broodnodige ruimte en daglicht op de verdieping. Op de begane grond komt een open plattegrond met trap in de woonkamer. De openslaande deuren van de aanbouw geven toegang tot de stadstuin. Op de verdieping twee slaapkamers en badkamer, berging en dakterras.

Opdrachtgever

Particulier/ontwikelaar

 

Periode

2019

Bekijk overige projecten

robin hurts architect klein westerlicht

klein westerlicht alkmaar

De draai heerhugowaard korenbloemstraat robin hurts architect

Nieuwbouw woning de draai Heerhugowaard

Bedrijfspand Heerhugowaard

Nieuwsgierig geworden naar onze aanpak? En hoe wij onze expertise voor u kunnen inzetten? Bel of mail ons voor een vrijblijvend gesprek.